
人間的是是非非

·項目信息·
項目地址:棕櫚泉悅江國際
項目面積:180㎡
設計風格:新中式
常住人口:3-5人
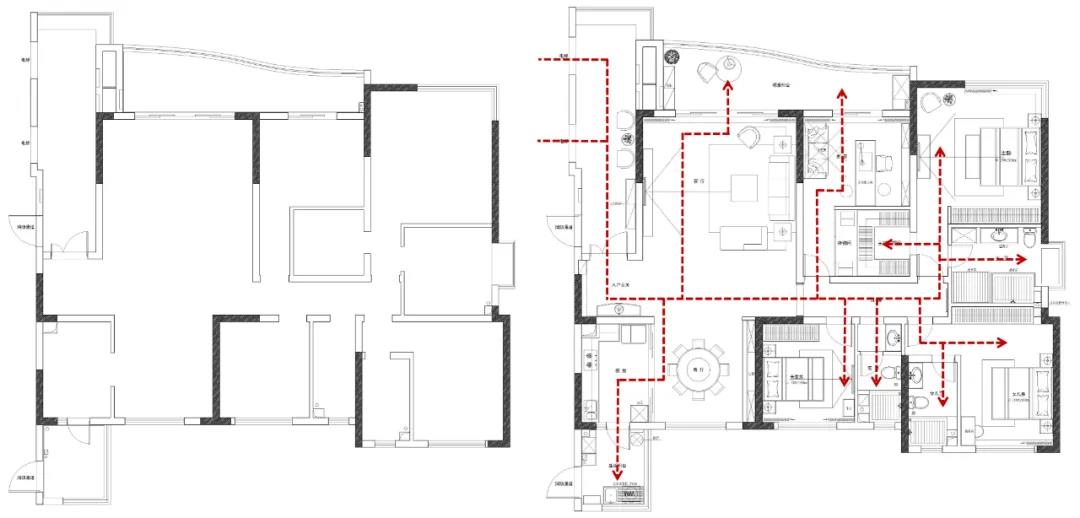
·項目詳解·


·案例賞析·

·客廳·
客廳設計上采用濃厚的新中式元素,不論是墻面的山水畫、還是線條勾勒如窗欞的花紋裝飾,無一不透露著中式獨有的詩畫韻味。電視墻采用大理石花紋,靈動自然、奢華尊貴,再加以盤虬盆栽,打造出極富古典氣息的空間氣質。

·茶室·
獨立茶室既是待客休閑之所,也能作書房之用。仿古典柜體的設計與山水式吊燈映襯,室內空間嫻靜雅致,恍惚已有茶香滿室。

·餐廳·
餐邊柜的設計,利于物品的擺放和存取。上方柜體門透明,既能做收納之用,也能作酒柜展示之用。與整體風格相符合的圓形餐桌,再次點名新中式的主題,更表達了傳統文化中對“團圓”的期待。

·廚房·
廚房操作臺做L型設計,動線流暢,寬敞便捷。生活陽臺與之連通,相對擴寬廚房的適用范圍。家電配備齊全,烘焙、烤制都不在話下。

·臥室·
臥室整體去除復雜的設計元素,精準提煉最能表達風格的顏色,以灰綠、灰白、米色等低飽和度的色調進行搭配,打造出素雅簡潔、又頗有中式風韻的休憩空間。


主臥及主衛·
主臥床頭山水畫再次點明新中式主題,深棕色墻面與白色墻面中和,厚重也不失飄逸。無主燈設計讓室內光線更加柔和,主人在此休息睡眠體驗更好。衛生間做干濕分離,便于保持清潔,淋浴室做防滑設計,小細節很重要。
·項目信息·
項目地址:棕櫚泉悅江國際
項目面積:180㎡
設計風格:新中式
常住人口:3-5人
·項目詳解·